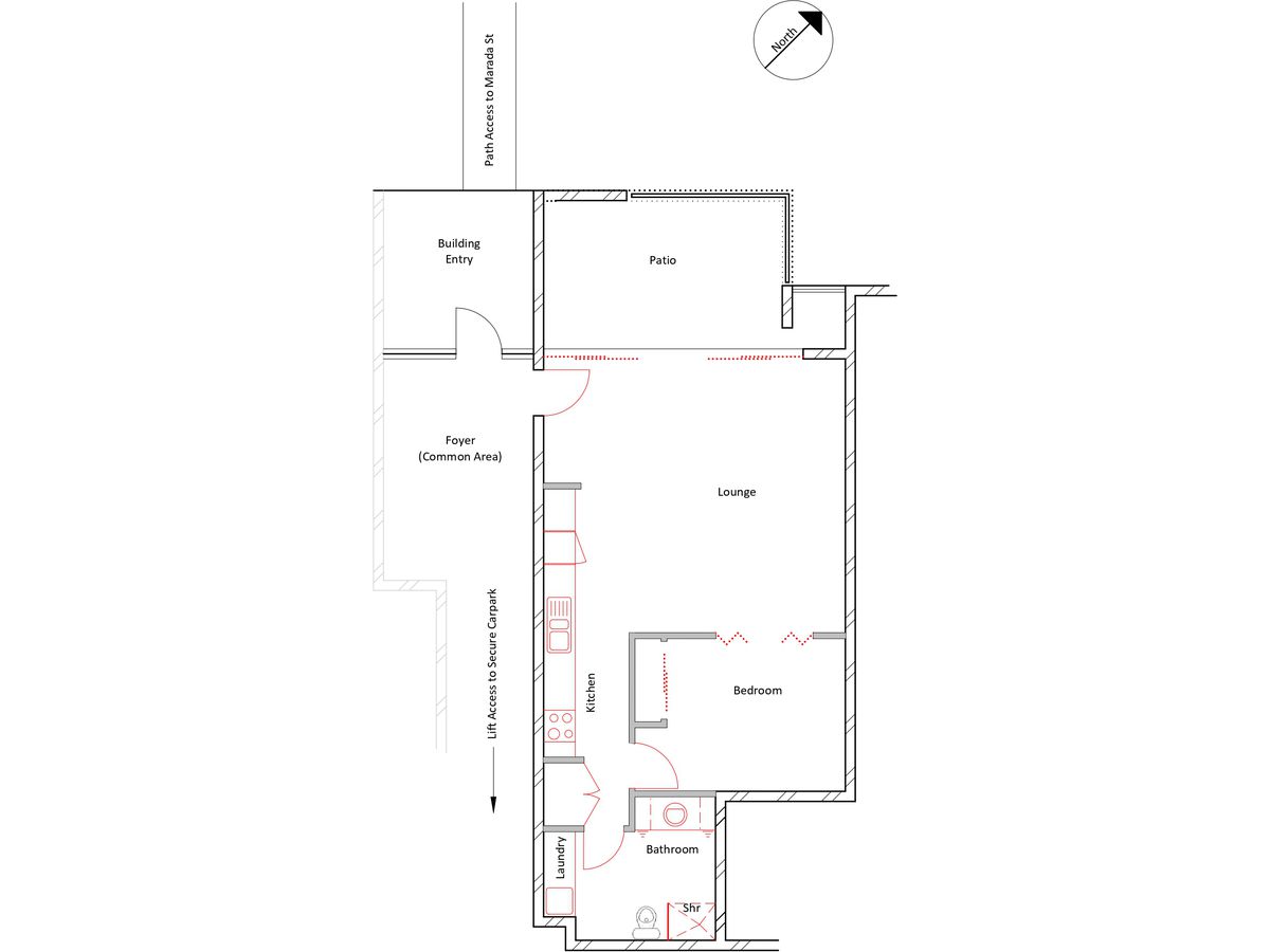
• Open plan wheelchair friendly one bedroom apartment designed for easy access.
• Secure carpark accessed via lift, pathway access to Street via building entry.
• Bathroom vanity unit and adaptable kitchen cupboards for under bench access.
• Split system air conditioner, washing machine, clothes dryer and dishwasher.
• Exclusive use secure equipment storage adjacent to designated car park.
• Common areas include pool, gardens and BBQ facilities.
• Opposite Garden City Shopping Centre and Bus Station on Logan Road.
• Griffith University Nathan Campus, QEII Hospital, QEII Sports Stadium and Hibiscus Sports Complex within 4Km radius. 15Km to Brisbane CBD.
• Unit - 58 sqm. Patio - 16 sqm. Carpark - 15 sqm. Exclusive use store - 4 sqm.
• Currently tenanted at $340 / week. Lease expires September 2021.
Features
Floor Plan
Floorplan 1






